Pôle Médico-Social jeunes et adultes

SAINT-MANDE 2024

Institut Le Val Mandé

  • Concours
  • Santé
  • Industrie, Bureaux
SAINT-MANDE  Pôle Médico-Social jeunes et adultes SAINT-MANDE  Pôle Médico-Social jeunes et adultes SAINT-MANDE  Pôle Médico-Social jeunes et adultes SAINT-MANDE  Pôle Médico-Social jeunes et adultes SAINT-MANDE  Pôle Médico-Social jeunes et adultes SAINT-MANDE  Pôle Médico-Social jeunes et adultes

Lieu

Saint-Mandé (94)

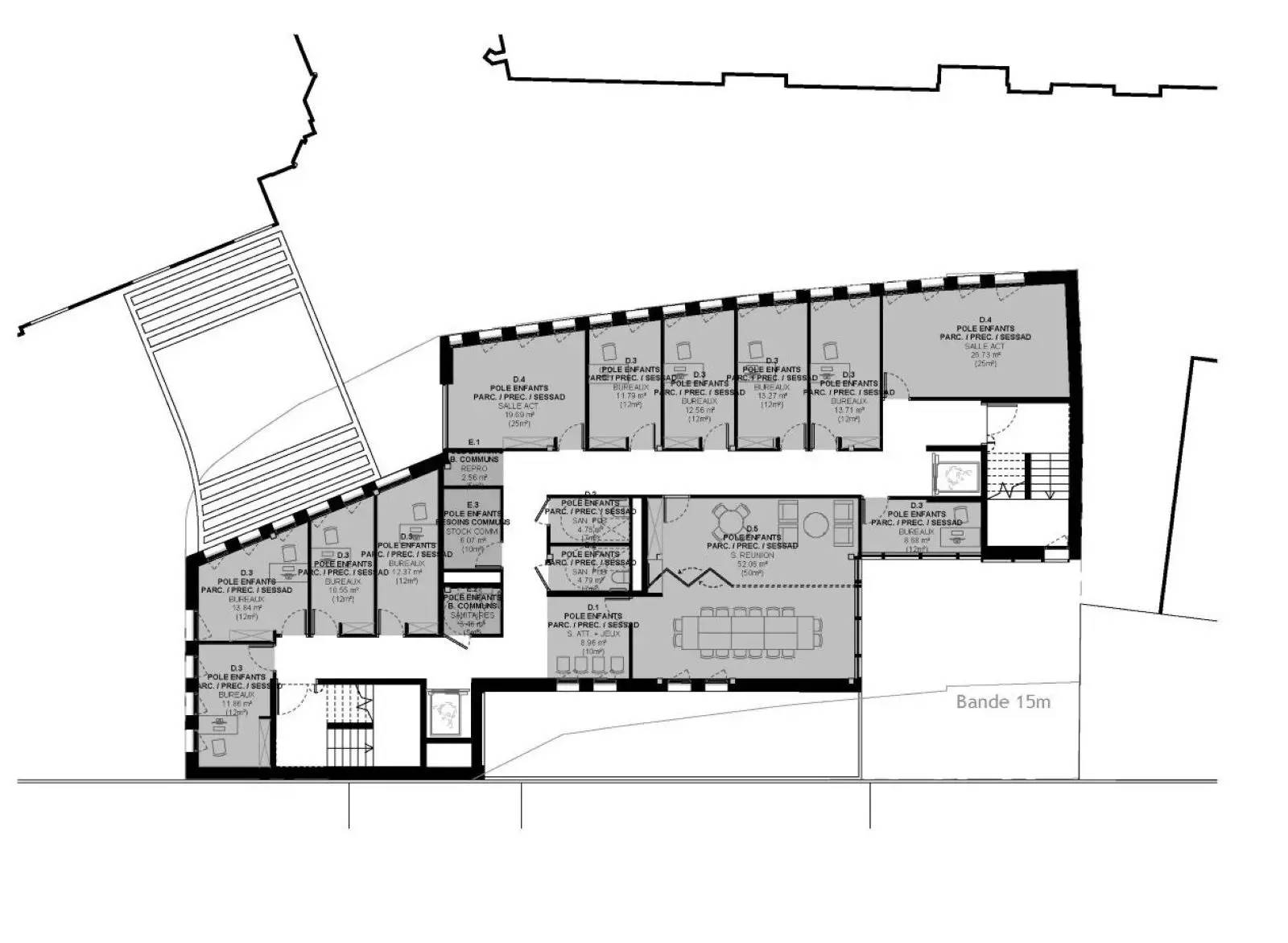
Programme

Construction du pôle éducatif de l'Institut Le Val Mandé :
Ecole de l’IME
Dispositif jeune majeur
Dispositif diagnostic précoce et cellule parcours
Locaux du SESSAD
Bureaux du SAMSAH
Bureaux du SAVIE
Accompagnement jeunes majeurs psy

Maître d'ouvrage

Institut Le Val Mandé

Calendrier

Concours 2024

Equipe de maîtrise d'oeuvre

BET TCE : EPDC
BET HQE : IETI
Economiste : MEBI
OPC : IXANS
Acousticien : ALTERNATIVE
Paysagiste : Atelier NDF

Entreprise

OBM Construction

Surface totale

1 800 m² SDP

Montant des travaux

6.1M€